Suite 7

Leased

Spacious exterior professional office space featuring lobby area, an admin area with a check-in window, six large private offices, and two private restrooms.

Suite Size: 1802 SF Actual

More Info

Suite 8

Available

Spacious recently builtout exterior professional space featuring a large open studio area, two large private offices, and two private restrooms.

Suite Size: 1804 SF Actual

More Info

Suite 250

Available

Spacious professional office suite featuring a lobby area, an admin area with a check-in window, two large private window offices, and a storage room.

Suite Size: 901 SF Common, 774 SF Actual

More Info

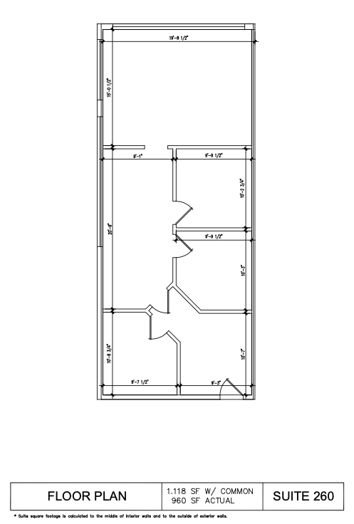
Suite 260

Available March 1st

Spacious professional office suite featuring a lobby area, three private offices, and a large open floorplan area with exterior windows.

Suite Size: 1118 SF Common, 960 SF Actual

More Info

Suite 280

Leased

Spacious professional office suite featuring a lobby area, an admin area with a check-in window, and four large private offices.

Suite Size: 1162 SF Common, 998 SF Actual

More Info

Office 120-5

Leased
Window View

Large private office in our CoWork facility. This office features exterior windows for natural lighting.

Office Size: 10' x 15' 150 SF

More Info

Office 120-6

Leased

Interior private office in our CoWork facility.

Office Size: 7' x 15' 100 SF

More Info

Office 120-8

Leased
Window View

Large private office in our CoWork facility. This office features exterior windows for natural lighting.

Office Size: 10' x 12' 120 SF

More Info

Office 120-9

Available
Window View

Large private office in our CoWork facility. This office features exterior windows for natural lighting and a connecting door with adjacent office 120-10. This office is available for lease as a single office, or as a two office package with Office 120-10.

Office Size: 10' x 15' 150 SF

More Info

Office 120-10

Available

Interior private office in our CoWork facility. This office features a connecting door with adjacent office 120-10. This office is available for monthly lease as a single office, or as a two office package with Office 120-9.

Office Size: 10' x 10' 100 SF

More Info

Office 120-11

Leased

Interior private office in our CoWork facility.

Office Size: 10' x 10' 100 SF

More Info

Office 120-12

Leased

Interior private office in our CoWork facility.

Office Size: 10' x 10' 100 SF

More Info

CoWork Offices

Available

Individual private offices available for lease in a professional co-working environment.

All of our CoWork offices include access to the Lobby, BoardRoom, Business Center, and Kitchen areas.

Office Sizes: 100 to 150 SF

More Info

For Leasing Information: